Home
Featured
The Cottonwood
The Ridgeway II
The Riverside II
The Sanctuary
The Gulf Shores
The Sandpiper
Plans
The Casita I
The Forest Dawn
The Lone Peak
The Deer Valley
The Sunflower
About
Services
Testimonials
Contact
Call: 281-541-7722
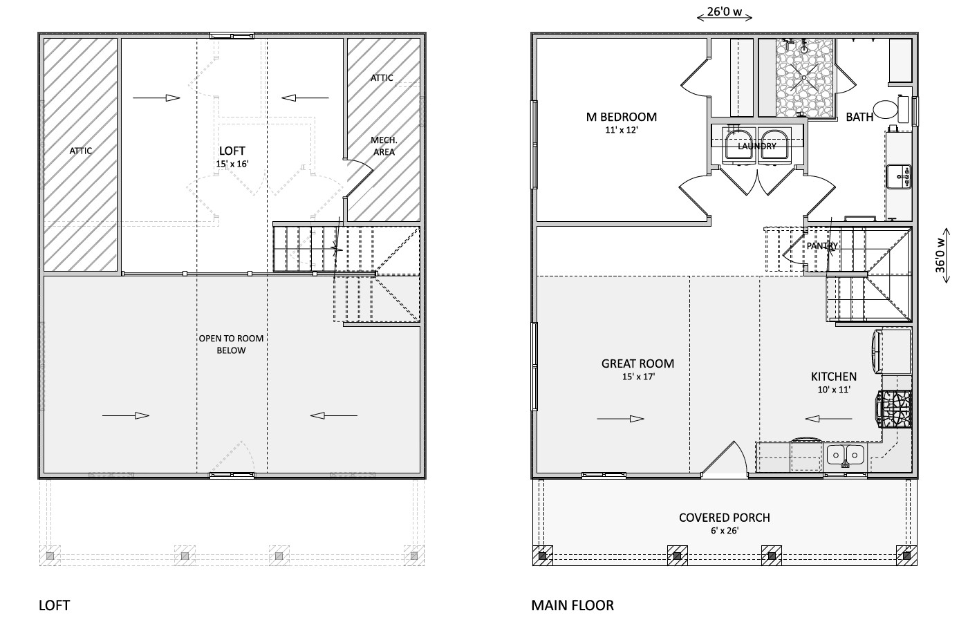
The Casita I
Customizable Guest Houses
Plan Number:
Plan 1010
Living Sq Ft:
1035
Overall Width:
26'
Overall Depth:
36'
Bedrooms:
1
Bathrooms:
1
Stories:
2
Options Available:
Yes
How Can We Serve You?
Name
Required
Email
Required
Phone
Questions/Comments
Submit