Home
Featured
The Cottonwood
The Ridgeway II
The Riverside II
The Sanctuary
The Gulf Shores
The Sandpiper
Plans
The Casita I
The Forest Dawn
The Lone Peak
The Deer Valley
About
Services
Testimonials
Contact
Call: 281-541-7722
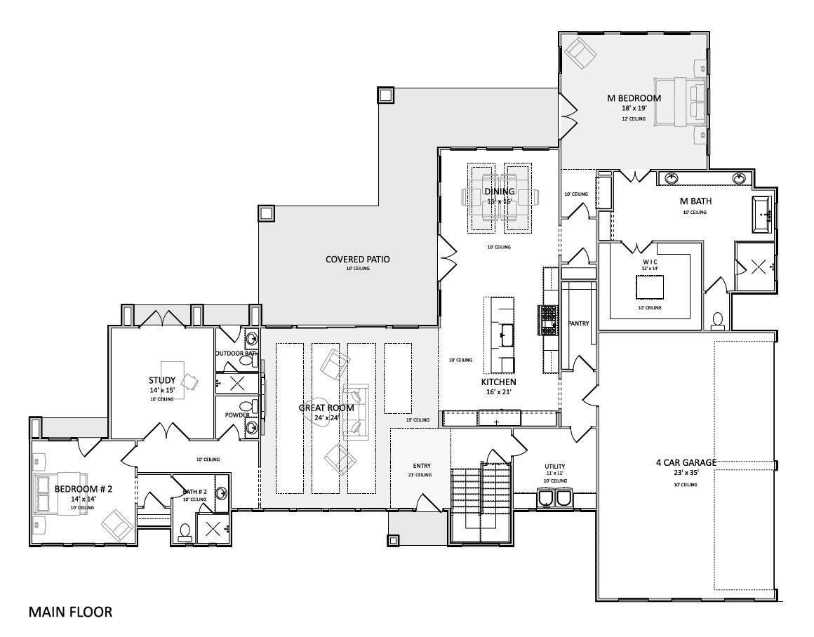
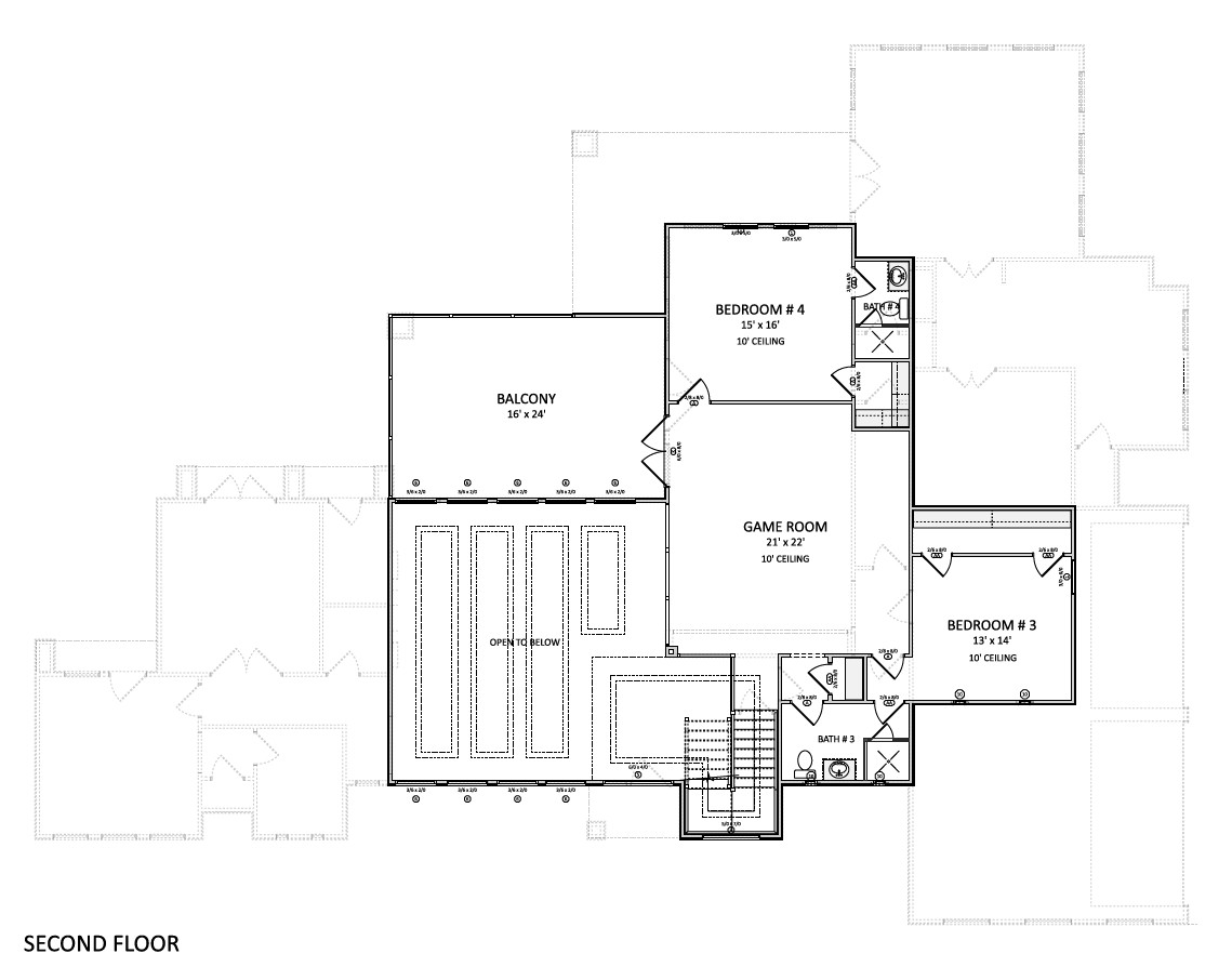
The Forest Dawn
The Forest Dawn
Plan Number:
Plan 4030
Living Sq Ft:
4372
Overall Width:
99'
Overall Depth:
76'
Bedrooms:
4/5
Bathrooms:
5.5
Stories:
2
Options Available:
Yes
How Can We Serve You?
Name
Required
Email
Required
Phone
Questions/Comments
Submit